Бизнес-план по открытию боулинг-клуба | VPS EC™
Бизнес-план. Пример расчета открытия боулинг-клуба на 6 дорожек:
1. Затраты без налогов
| 1.1. Инвестиционные затраты | ||
| Юридическое оформление, лицензии | Здание | $220,00 |
| Дизайн, электрика, отделка (стена, подиум) | Здание | $3 000,00 |
| Кондиционирование, отопление, тюнинг | Здание | $900,00 |
| Стоимость дорожек «под ключ» | Дорожки | $244 000,00 |
| Совокупный таможенный платеж | Дорожки | Включено |
| Транспортные расходы | Дорожки | Включено |
| Пусконаладочные работы | Дорожки | Включено |
| Спорт-бар (стойки, оборудование, мебель, посуда) | Доп. оборудование |
$16 300,00 |
| Прошоп | Доп. оборудование | $4 000,00 |
| Аэрохоккей | Доп. оборудование | $3 000,00 |
| Бильярд пул, 6 футов | Доп. оборудование | $7 000,00 |
| Прочее (офисное, видео- и музыкальное оборудование, охранные и пр. системы) | Доп. оборудование | $6 000,00 |
| ИТОГО: | $284 420,00 | |
| 1.2. Текущие затраты — год | |
| Арендная плата (помещение в собственности) | $0,00 |
| Коммунальные платежи | $6 000,00 |
| Связь (интернет, телефон) | $1 400,00 |
| Реклама и PR | $1 686,30 |
| Подбор и обучение персонала | $1 500,00 |
| Проведение презентации | $1 500,00 |
Прочие (питание персонала, вывоз мусора и т. п.) |
$2 000,00 |
| Непредвиденные расходы | $2 000,00 |
| Боулинг | $1 200,00 |
| Бар | $56 000,00 |
| Доп оборудование | $0,00 |
| Прочие (канцелярские, хозяйственные, представительские) | $1 000,00 |
| ИТОГО: | $74 286,30 |
| 1.3. Затраты на персонал | |||
| 1.3.1. Зарплата | |||
| Штат | Кол-во | Зарплата | ФОТ, год |
| Управляющий | 1 | $1 000,00 | $12 000,00 |
| Главный механик | 1 | $800,00 | $9 600,00 |
| Кассир-операционист | 3 | $300,00 | $10 800,00 |
| Инструктор (боулинг) | 1 | $350,00 | $4 200,00 |
| Механики | 3 | $400,00 | $14 400,00 |
| Бармены | 3 | $450,00 | $16 200,00 |
| Официантки | 3 | $300,00 | $10 800,00 |
| Повара | 1 | $500,00 | $6 000,00 |
| Мойщики посуды | 3 | $200,00 | $7 200,00 |
| ИТОГО, ФОТ | 19 | $91 200,00 | |
1. 3.2. Единый социальный налог |
|||
| Управляющий | $2 920,00 | ||
| Главный механик | $2 440,00 | ||
| Кассир-операционист | $3 720,00 | ||
| Инструктор (боулинг) | $1 360,00 | ||
| Механики | $4 440,00 | ||
| Бармены | $4 800,00 | ||
| Официантки | $3 720,00 | ||
| Повара | $1 720,00 | ||
| Мойщики посуды | $2 563,20 | ||
| ИТОГО ЕСН: | $27 683,20 | ||
| ВСЕГО, затрат на персонал | $118 883,20 | ||
Выручка
| Понедельник- пятница с 12:00 до 18:00 | $11,67 |
| Понедельник- пятница с 18:00 до 06:00 | $15,00 |
| Выходные с 12:00 до 18:00 | $13,33 |
| Выходные с 18:00 до 06:00 | $16,67 |
| Средняя стоимость часа игры | $14,17 |
| Количество дорожек | 6 |
Средняя загреженность 1 дорожки в день, час.![]() |
8,00 |
| Среднегодовая выручка от дорожек | $248 214,60 |
| Среднегодовая выручка от доп. услуг | $168 000,00 |
| ИТОГО, выручка по боулингу |
Налоги и свод расходов
| 3.1. Налоги | |
| НДС | -$19 899,27 |
| Налог на прибыль | -$25 280,12 |
| Налог на имущество | $6 680,46 |
| Налог на рекламу | $84,32 |
| Налог на пользователей автодорог | |
| Другие выплаты | |
| ИТОГО: | -$38 414,61 |
3. 2. Свод расходов |
|
| Инвестиционные | $284 420,00 |
| Текущие | $74 286,30 |
| Персонал | $118 883,20 |
| Налоги | -$38 414,61 |
| ИТОГО: | $439 174,89 |
Прибыль и окупаемость
| 4.1. Прибыль | |
| Выручка | $416 214,60 |
| Затраты | $439 174,89 |
| Прибыль | -$22 960,29 |
| 4.2. Окупаемость | |||
| Месяц | Выручка | Затраты | Прибыль |
| 1 | $34 684,55 | $297 316,24 | -$262 631,69 |
| 2 | $34 684,55 | $12 896,24 | -$240 843,38 |
| 3 | $34 684,55 | $12 896,24 | -$219 055,07 |
| 4 | $34 684,55 | $12 896,24 | -$197 266,76 |
| 5 | $34 684,55 | $12 896,24 | -$175 478,45 |
| 6 | $34 684,55 | $12 896,24 | -$153 690,14 |
| 7 | $34 684,55 | $12 896,24 | -$131 901,83 |
| 8 | $34 684,55 | $12 896,24 | -$110 113,53 |
| 9 | $34 684,55 | $12 896,24 | -$88 325,22 |
| 10 | $34 684,55 | $12 896,24 | -$66 536,91 |
| 11 | $34 684,55 | $12 896,24 | -$44 748,60 |
| 12 | $34 684,55 | $12 896,24 | -$22 960,29 |
| 13 | $34 684,55 | $12 896,24 | -$1 171,98 |
| 14 | $34 684,55 | $12 896,24 | $20 616,33 |
Инвестиции: $284 420
Среднегодовой расход: $154 755
Среднегодовая выручка: $416 215
Срок окупаемости: 13 месяцев
Валовая рентабельность: 0,63
Скачать → бизнес-план боулинг-клуба
Скачать → пакет инвестора
В лицензированном проектно-дизайнерском бюро VPS EC Вам помогут:
- Разработать проект (стадии «П» и «РП» — КЖ, КМ, геплан, электрооборудование), если кроме земельного участка и идеи у Вас ничего нет;
- Разработать проект капремнота или реконструкции существующего здания в современный спортивно- развлекательный комплекс;
- Выбрать типовой проект строительства такого комплекса либо боулинг-клуба с последующей привязкой в Вашем районе;
- Осуществить расчет ТЭО, экономических рисков, обоснованности сметы;
- Предложить современные инновационные технологии СМР, оптимизирующие затраты времени и инвестиций;
- Разработать дизайны и интерьеры с применением технологий симпролита, напыления, V-Cyber гибкого неона «Led», вантовых конструкций;
- Оказать помощь в поиске ГАП, ГИП, подрядных организаций;
- Скомплектовать и смонтировать «под ключ» все оборудование, включая боулинг, бар, ресторан, зоны трансформеров и семейного досуга.

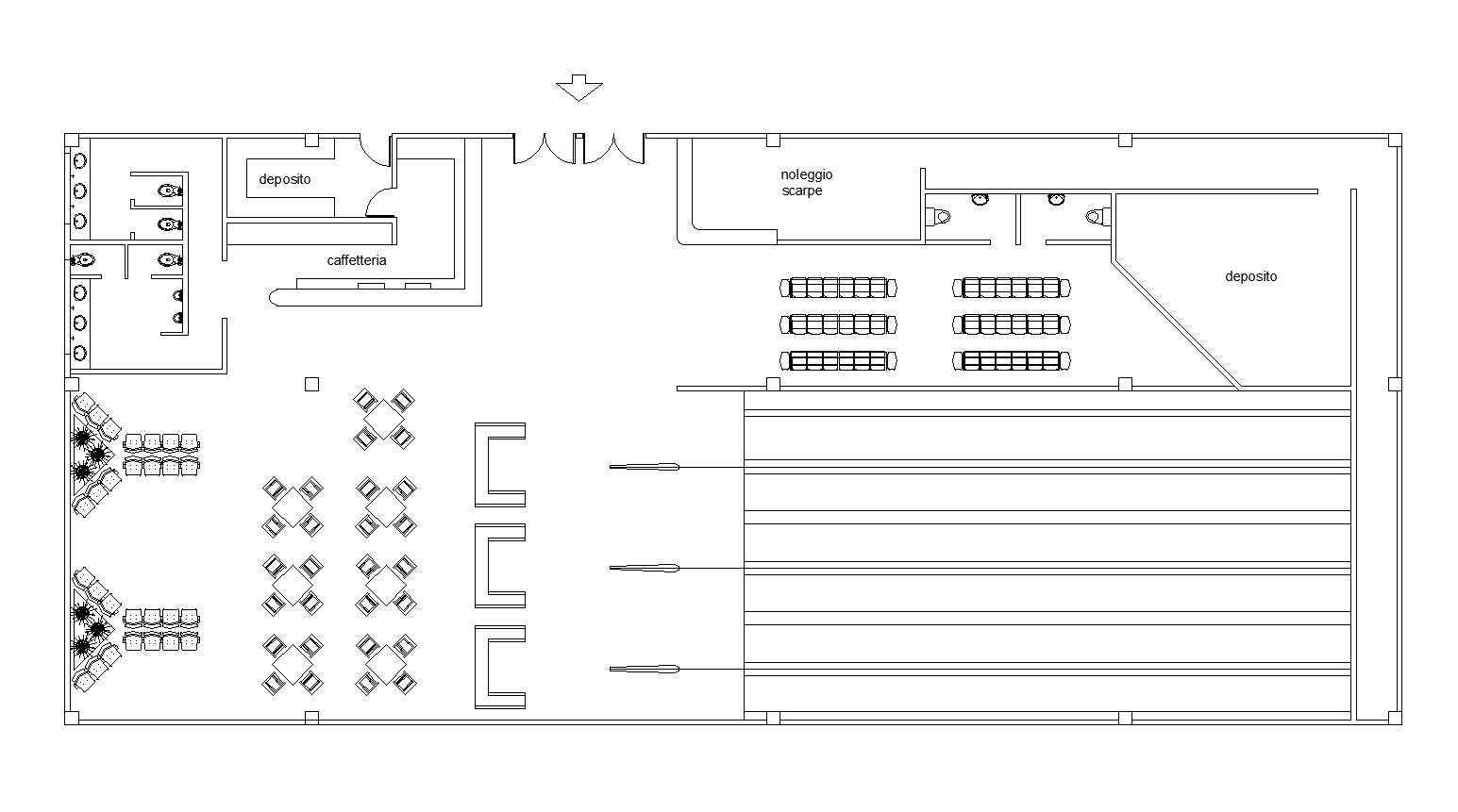
Размеры и основные параметры помещения
- Минимальная длина дорожки 30,51 м. Недостаток длины в небольших боулинг центрах может быть восполнен, тем, что зону отдыха можно вынести в бок от дорожки.
- Ширина помещения определяется в соответствии с таблицей плюс 50 см. для бокового прохода механика в зону обслуживания машин.
- Площадь дорожки должна выдерживать нагрузку в 300 кг/м2, а места установки пинсеттеров — 500 кг/м2.
- Высота помещения должна быть минимум 3,5-4 м до уровня подвесных потолков.
- Температурный режим в помещении 20-22 градуса. Влажность 45-50%. Обязательным является зональное кондиционирование всех участков боулинг-центра.
- Наличие главного распределительного щита и двух электрощитов на электронное и механическое оборудование соответственно.
- Освещенность зоны отдыха на 50-60 люкс слабее, чем самих дорожек при стандартном и космическом вариантах.
Количество дорожек — ширина помещения в м.
| 2 — 3,46 м | 10 — 17,04 м | 20 — 34,01 м |
| 3 — 5,44 м | 12 — 20,43 м | 22 — 37,40 м |
| 4 — 6,86 м | 14 — 23,83 м | 24 — 40,80 м |
| 6 — 10,25 м | 16 — 27,22 м | 26 — 44,19 м |
| 8 — 13,65 м | 18 — 30,62 м | 28 — 47,59 м |
Размещение и прилегающая территория
Место будущего боулинг-центра должно быть выбрано с тем, чтобы иметь свободный доступ со стороны проезжей части транспортной магистрали. Обязательным элементом является наличие автостоянки, расположенной поблизости от входа в здание.
Особое внимание — чистота предбоулингового пространства: чем меньше грязи в вестибюле и входе, тем меньше ее и на дорожках.
Здание и помещение
Задача архитекторов на этом этапе — верный выбор помещения (здания). Оно должно быть максимально открытым со всех сторон, светлым, удобным, безопасным и функциональным. Обязательным является приведение состояния помещения в соответствии с техническими требованиями поставщика оборудования, СЭС и пожарников. Необходимыми действиями являются также тюнинг, зональное кондиционирование и освещение помещения.
Реклама
Наружная реклама, такая, как баннеры, перетяжки, вывески призвана выделить и подчеркнуть дизайн и стиль Вашего боулинг-центра. Необходимо чтобы Вас видели и выделяли на фоне общей застройки. Кроме наружки, внутренняя реклама в помещении может являться частью оформления интерьера и приносить заведению дополнительную коммерческую прибыль.
Интерьер
Интерьер выбирается исходя из общей концепции и дизайна Вашего заведения.
Вход в боулинг-центр как визитная карточка — должен рассказать обо всем, что происходит в заведении. Стойка рецепшн должна работать как своеобразный магнит для посетителей, привлекать делать их новые заказы. Размеры стойки обуславливают работу минимум 2-3 человек: менеджера Прошопа, операциониста и кассира. Удобное месторасположение рецепшн — это прежде всего возможность видеть все, что происходит в боулинг-центре.
Обязательные службы
- Рецепшн — место, где производятся операции над дорожками, выдается сменная обувь и ведутся расчеты с клиентами.
- Место переобувания — ряд сидений для смены обуви.
- Раздельные мужские и женские туалеты.
- Гардероб.
- Офисное помещение. При необходимости — комната охраны.
- Комната механиков и ремонтная мастерская. Складское помещение для хранения запасных частей и акссесуаров для боулинга: отдельное или совмещенное с комнатой механиков.
- Система пожаротушения.
Пожарные выходы из здания. - VIP ячейки постоянных посетителей и спортсменов для переодевания.
- Комната персонала (staff room).
- Бар/ ресторан с кухней, кафе/закусочная. При необходимости в состав Вашего боулинг-центра вводятся игровые автоматы, бильярд, дартс, дискотека и проч.
4.2.6. Боулинг – клуб
С технической точки зрения современный боулинг-клуб представляет собой довольно сложную систему, составными частями которой выступают независимые друг от друга элементы оборудования. Как правило, боулинг-клуб, помимо необходимых для боулинга механизмов, объединяет под своей крышей зону отдыха с баром и игровые автоматы. Более того, некоторые владельцы клубов стараются создать на базе боулинг-клуба настоящий центр отдыха, развлечений и досуга; в таких клубах боулер может посетить ресторан, бильярд, салон красоты и даже сауну.*
Первое,
что проектируется при постройке
боулинг-клуба – это дорожки.
(Рис 53) Их
основу составляет конструкция из дерева,
которое не только «дышит», но и чутко
реагирует на малейшие изменения влажности
температуры, условий эксплуатации и
состояния окружающей среды. Дорожка
должна быть 18,228 м в длину и 1,668 м в ширину.
Кривизна дорожки в поперечном сечении
не должна превышать 1 мм, и с той же
точностью должны быть соблюдены все
параметры каждой дорожки. Стандартная
дорожка должна быть составлена из 40
отдельных досок, каждой из которых для
удобства присваивается условный номер.
Материал этих досок регламентирован,
правила устанавливают даже максимальный
коэффициент трения для поверхности
дорожки, однако в списке можно найти
как натуральное дерево (клен и некоторые
породы сосны), так и синтетические
материалы, в частности, жесткий линолеум.
Каждую
дорожку с обеих сторон окаймляют желоба,
простирающиеся от линии фола до задней
панели. Согласно правилам, желоб должен
быть сделан из дерева или допущенного
синтетического материала, ширина желобов
должна находиться в пределах 9-9,5 дюймов,
а ширина дорожки вместе с ними не должна
превышать 60 — 60,25 дюйма.
––––––––––––––––––––––––––
* Турскова Т.А. Боулинг. –М.: Вече, 2002. -384 с.
В пределах 15 дюймов перед первой кеглей днища желобов должны иметь квадратную форму. Этот участок желобов располагается под уклоном и при входе в шахту располагается в 3,1/12 – 3,75 дюйма под поверхностью дорожек. Днища желобов на всей остальной их протяженности должны иметь вогнутую форму и располагаться в 1,875 дюйма (высота измеряется в центральной точке).
«Зона
пинспоттера», или зона кеглей расположена в самом конце дорожки. Ее
длина определяется размерами стола под
кеглями – 40 дюймов, или 1 м. Сразу за ней
в конце дорожки находится шахта, куда
после удара кегли скатываются шары.
Расстояние от пола шахты до верхней
точки дорожки должно быть не менее 10
дюймов, от покрытия шахты до верхней
точки дорожки не менее — 9,5 дюймов. Ширина
шахты, как правило, достигает 30 дюймов
или даже более (от задней границы дорожки,
включая заднюю панель, до амортизатора)
менее — 9,5 дюймов.
Для игры дорожки покрываются маслом, специально разработанным для боулинга. От количества и распределения слоев масла на дорожке во многом зависят особенности движения по ней шаров различных типов. Масло может наноситься на покрытие дорожки как в один, так и в несколько слоев. Нанесение его начинается от самой линии фола. Длина полосы масла на тренировках определяется желанием игрока, а на соревнованиях — установленными на них правилами, но между зоной дорожки, покрытой маслом, и зоной установки кеглей должен оставаться достаточно заметный промежуток – т.н. сухая зона. Критериями нанесения масла считаются длина слоя от линии фола и количество слоев; по этим данным определяется характер намазки. Так, например, фраза «намазка 40-25-дубль» означает, что на дорожку нанесены три слоя масла: первый длиной 40 футов и два длиной 25 футов
Покрытие
дорожки должно быть равномерным и
однородным по всей длине. В соответствии
с требованиями и техникой игры дорожка
разделяется на несколько зон, для
каждой из которых характерны свои
условия.
Собственно, игровая зона
начинается еще с зоны подхода, или разбега, длиной 1,54 фута, или 4,68 м. В
этой зоне также существует своя
обязательная разметка – две пунктирные
линии, облегчающие игрокам подход к
броску. От первой (ближайшей к готовящемуся
игроку) линии разметки до линии фола, заступать за которую запрещено
правилами, установлено расстояние в 15
футов, или 4,5 м, до второй линии – 11,5
футов, или 3,5 м.
Относительно линии фола также существуют свои требования. Так, ее ширина не должна превышать 1 дюйма, но при этом должна быть не менее ¾ дюйма.
За линией фола начинается собственно дорожка. На расстоянии 7,2 фута, или 2,18 м, от этой линии на дорожку нанесен ряд круглых меток – т.н. меток прицеливания. Это первая из нескольких отметок, которые должны облегчить игроку определение направления броска; согласно стандартам большинства соревнований, этих меток не должно быть более 10, а ширина каждой метки не
должна
превышать 0,75 дюйма в диаметре.
На
расстоянии, почти вдвое боль-
Рисунок 53. Дорожки боулинга
шем (5 футов, или 4,57 м), на дорожке нанесены т.н. главные стрелки прицеливания. (Рис.54). Количество этих стрелок ограничено числом 7; все они должны располагаться на одинаковом расстоянии друг от друга и в одной линии, общая поверхность стрелки не должна превышать 1,25 дюйма в ширину и 6 дюймов в длину. Форма стрелок также должна быть одинаковой: по виду они должны состоять из одного или более дюбелей, дротиков, треугольников или прямоугольников.
Рисунок 54. Стрелки прицеливания нанесены на дорожку
Разметка
должна быть одинаковой по форме и
размерам на всех дорожках. На поверхность
пола в самой зоне подхода также могут
быть нанесены направляющие (числом не
более 10) в следующих точках: 2-6 футов,
9-10 футов, 11-12 футов и 14-15 футов от линии
фола, причем каждый блок направляющих
должен быть параллелен этой линии.
Каждая направляющая каждого блока
должна быть круглой формы, ее диаметр
ограничен величиной 0,75 дюйма. Эта
разметка должна быть выполнена из
дерева, волокна или пластмассы и не
должна выступать над поверхностью
подхода дорожки. При разметке методом
печати она наносится на голое дерево и
только после этого покрывается лаком
или другим прозрачным материалом.
Платформа
для кеглей должна быть изготовлена
из древесины лиственных пород или иного
материала, одобренного стандартными
правилами. При проведении соревнований
допускается дополнительное крепление
к краю платформы, прилежащему к желобам
дорожки, вертикальной волокнистой
полоски, простирающейся от линии первой
кегли до шахты. Эта полоска должна иметь
толщину не более 0,25 дюйма и ширину не
менее 1,5 дюйма. Края платформы для кеглей
должны быть закруглены с радиусом не
более 5/32дюйма, а вся платформа в целом не
должна иметь наклона более 0,187 дюйма
в пределах поверхности в 42 дюйма.
К
задней части дорожки, позади платформы
для кеглей, крепится т.н. задняя панель
шириной не более 2 дюймов. Расстояние
от задней панели до последней линии
кеглей, включая толщину самой панели,
не должно быть более 5 дюймов.
Практика
показывает, что оптимальным вариантом
расположения дорожек является парное.
Большая часть производимого индустрией
боулинга оборудования проектируется
таким образом, чтобы каждое устройство
— пинспоттеры, возвратные системы и т.п.
– обслуживало одновременно две дорожки.
В большинстве клубов строится шесть
пар дорожек; управление работой всех
их механизмов осуществляется при помощи
разветвленной компьютерной системы.
Монитор центрального компьютера этой
локальной сети. т.н. сервера, можно
увидеть на стойке сотрудника, принимающего
плату за сеанс игры. Этому человеку
вменяется в обязанность наблюдение за
состоянием всех дорожек и за всеми
действиями и событиями, происходящими
в игровой зоне, и координация работы
элементов технического обеспечения
боулинг-клуба.
Каждая дорожка при этом
располагает независимым пультом
управления, расположенным в т.н. зоне
пинспоттера и доступный только механикам.
Этот пульт необходим только в тех
случаях, когда в работе того или иного
механизма, обслуживающего дорожку,
возникают неполадки.
Пинспоттером называется система автоматической установки кеглей на дорожках. Стандартные модели пинспоттеров устанавливают кегли на платформу в среднем за 8,8 с. Как правило, в загрузочную кассету машины помещается 20 кеглей, готовых к постановке на дорожку; в современных пинспоттерах предусмотрено несколько загрузочных кассет, а в некоторых модификациях существует механизм эффективного кеглей, позволяющий сразу поднимать сбитые кегли на свободные места в загрузочной кассете.
Если
шар, не достигая кеглей, скатывается в
желоб, если он сбивает только крайние
кегли (например, 7 или 10), пинспоттер
автоматически сокращает цикл работы.
В таком случае проход «граблей»,
собирающих кегли, не требуется.
Если
система наблюдения фиксирует заступ,
пинспоттер автоматически регистрирует
фол и меняет кегли. В программу этой
машины заложена способность ставить
на прежнее место кегли, смещенные после
первого удара шара. Если же временные
промежутки между фреймами велики, то
пинспоттер автоматически переходит на
энергосберегающий режим.
Для
подсчета кеглей в пинспоттерах
используются цифровые видеокамеры с
электронной управляющей системой и
инфракрасными сенсорами. Управляющая
система осуществляет постоянный обмен
данными с шасси пинспоттера, оптимизируя
работу всего механизма в целом. Камера
контроля за кеглями может функционировать
и как отдельный механизм: в целом она
не требует настройки по меткам, легко
монтируется и соответствует принятому
в современном мире стандарту «Pluq
& Plau» — «подключи и
играй». Связанная с той же управляющей
системой, система самодиагностики
упрощает работу механика, передавая на
дисплей не просто цифровой код
неисправности, но подробное ее описание,
что позволяет довольно быстро локализовать
и решить проблему.
Большие подвесные мониторы монтируются парами или тройками непосредственно над дорожками, чуть дальше линии фола (Рис 55). Подвесные мониторы выполняют несколько функций. Прежде всего, они отображают информацию о ходе игры и текущих результатах на каждой дорожке. В тех случаях, когда в клубе используются дублирующие персональные мониторы, вся информация отображается также и на них, но пока, как правило, подвесные мониторы служат единственным устройством для вывода меню управления дорожкой. Иногда на подвесных мониторах можно увидеть наклейки, фиксирующие абсолютный рекорд дорожки и рекорд месяца с именем авторов.
Рисунок 55 Большие подвесные мониторы монтируются над дорожками
для игры
Существует
система возврата шаров. Ею игроки
пользуются во всех без исключения
клубах. Поэтому как руководство клубов,
так и производители оборудования для
боулинга уделяют особое внимание
бесперебойному функционированию этой
системы.
Терминал подачи шаров, общий для нескольких соседних дорожек. Оказавшись за линией кеглей, шар скатывается на направляющие транспортера и под действием силы тяжести движется к началу дорожки. Достигнув зоны подхода, с ленты транспортера шар перемещается на подъемный механизм, кото-
рый уже доставляет его на терминал (Рис 56).
Система возврата шаров функционирует постоянно и непрерывно, вне зависимости от активности игроков на дорожке в данный момент, даже если оборудование дорожки находится в режиме ожидания, брошенный шар должен вернуться на терминал.
Рисунок 56 Система возврата шаров
В состав программного обеспечения компьютерной системы боулинг-клуба обязательно входит т.н. модуль подсчета очков, работа которого основана на использовании фотоэлементов.
Детектор
заступа – один из наиболее
распространенных дополнительных
элементов программно-аппаратного
комплекса дорожки.
Как и в случае с
индивидуальными пультами управления,
детекторами заступа дорожки оснащены
не во всех клубах. Однако системы
автоматической фиксации заступа
приобретают все большую популярность,
т.к. при пересечении игроком линии фола
бросок не засчитывается, и при фиксации
заступа только инструкторами споры
неизбежны. Работает эта система на
основе простейшего фотоэлемента.
Бампер
или складной ограничитель. Они
представляют собой два легко устанавливаемых
нетолстых профиля во всю длину дорожки,
поднимающихся в рабочее положение из
специального зазора между дорожкой и
желобом. В сложенном положении бамперы
совершенно не мешают нормальной игре
и обслуживанию дорожек. Это приспособление
представляет собой бордюр высотой около
20 см, который в случае необходимости
устанавливается по краям дорожки. При
поднятых ограничителях любой бросок
заканчивается каким-то результатом:
шар, посланный неопытным игроком, будет
по касательной отскакивать от бамперов,
но в любом случае докатится до кеглей
и, к немалому удовольствию игрока,
нарушит стройность их рядов.
Поднимать бампер можно как механически (с помощью специальной «кочерги»), так и путем нажатия кнопки на консоли или центральной стойке, дающей команду пневматике.
Шар – самый важный и едва ли не самый сложный предмет в боулинге, несмотря на простую форму, считающуюся идеальной.
Шар для боулинга состоит по крайней мере из двух основных частей – ядра и покрытия. У наиболее сложных, специализированных шаров, ядро представляет собой композитный весовой блок, окруженный заливкой (Рис. 57).
В
зависимости от назначения шара (для
ударов и бросков) весовой блок шара
может состоять из 2-15 частей различных
форм и размеров; материал заливки и,
соответственно, его плотность, упругость,
масса также могут варьировать.
Профессиональный шар для боулинга,
согласно мировым стандартам, должен
содержать только неметаллические
материалы, не иметь внутренних пустот
и по линейным размерам, весу и балансу
соответствовать принятым стандартным
категориям.
Так, длина окружности шара
не должна превышать 68,58 см, будучи в то
же время не менее 67,82 см, при этом диаметр
шара должен быть постоянным по всем
осям (Рис. 58). Наибольший из допустимых
весов шара составляет 16 фунтов, или
7,264 кг; нижнего предела в этой категории
не существует – шар может быть сколь
угодно легким. Внешняя поверхность шара
должна быть ровной и гладкой, без каких
либо углублений.
Рисунок 57. Шар для боулинга в разрезе
Рисунок 58. Диаметр шара боулинга
В зависимости от материала покрытия шары подразделяют на каучуковые, пластиковые, уретановые, реактивные и проактивные.
Для
захвата шара в нем сверлятся специальные
отверстия. По современным стандартам
таких отверстий один шар может иметь
не более пяти, причем их глубина и диаметр
регламентированы не очень строго и
теоретически должны зависеть только
от удобства расположения руки при
броске.
По правилам большинства
соревнований, диаметр отверстий для
пальцев не должен превышать 0,25 дюйма,
тогда как диаметр т. н. балансировочного
отверстия не должен превышать 1,25 дюйма.
Вес шара по стандарту рассчитывается в фунтах, а пересчитать стандартную меру в килограммы можно по формуле 1 фунт = 0,454 кг. Считается, что
вес идеального шара должен составлять 1/10 веса тела игрока.
Параметры кеглей определены еще более строго,
нежели параметры шаров. В каждом комплекте
кегли должны быть одинаковы по виду,
строению, материалу, маркировке, степени
износа. Сделаны кегли (в идеальном
случае) должны быть из доброкачественной
кленовой древесины. Каждая кегля при
однослойной технологии должна состоять
из одной цельной; при использовании же
многослойной конструкции допускается
и большое количество частей, однако в
этом случае слои древесины должны
располагаться параллельно вертикальной
оси кегли. В материале не должно
содержаться более 6-12% влаги; в многослойных
же кеглях содержание влаги в каждой
составной части в процессе склеивания
не должно превышать 2%.
Покрытие
кеглей должно быть белым или прозрачным,
другие цвета разрешаются и даже требуются
только при нанесении на «шейку» кегли
фирменной маркировки – логотипа
производителя или клуба (кегли с логотипом
и названием боулинг-центра чаще всего
изготавливаются на заказ и используются
в качестве призов и сувениров). Согласно
стандарту, толщина пленки, покрывающей
поверхность кегли, должна составлять
0,004 дюйма. Верхняя часть кегли должна
иметь форму правильной дуги радиусом
1,273 дюйма, причем отклонение от этого
параметра допускается минимальное –
0,031 дюйма. Края основания кеглей должны
быть закругленными, с радиусом 0,156 дюйма,
с точностью также 0,031 дюйма. Высота кегли
должна составлять строго 15 дюймов, с
точностью до 2/64
дюйма, а длина окружности кегли в самой
широкой ее части должна составлять 4,7
дюйма. На основании каждой кегли должна
присутствовать пластиковая или
волокнистая прокладка или вставка с
внешним диаметром не менее 2 дюймов.
Баланс кегли, или высота ее центра
тяжести, должна отсчитываться от
основания кегли и находится строго не
ниже 5,40/64
дюйма и не выше 5,60/64
дюйма от точки отсчета.
Вес кегли
также может варьировать только в строго
установленных пределах: каждая кегля,
с пластиковым покрытием или без него,
должна весить не менее 3 фунтов и 6 унций
(приблизительно 1531 г) и не более 3 фунтов
и 10 унций (приблизительно 1645 г).
Сколько стоит открыть боулинг?
Сколько стоит открыть боулинг?
Александр Ходаков
Словом «боулинг» сейчас уже никого не удивить, хотя в России боулинг-центры пока в дефиците. Так, например, в США одна дорожка для боулинга приходится на 2000 человек, а в нашей стране – одна на 65000. Всего в стране сейчас действует более 380 боулингов, 2500 дорожек, из них около половины – в Москве и в Санкт-Петербурге. Особенный бум открытия боулингов пришелся на последние два года, а в прошлом году шары боулинга докатились до самых дальних областей России.
История боулинг-бизнеса в России |
До августовского кризиса 1998 года новые русские тешили себя заморской диковинной
«игрой в кегли» за сто долларов в час, а владельцы первых боулингов, по их
признанию, просто гребли деньги лопатой.
Сегодня же стоимость часа игры стоит
в среднем 25 долларов, а сами боулинги ориентируются на средний слой населения.
Экономика боулинг-бизнеса от этого не особенно пострадала. Во-первых, снизилась
стоимость оборудования, во-вторых значительно расширился рынок — количество
играющих в боулинг в России ежегодно удваивается. Кроме того, рост числа дорожек
снижает издержки — если раньше открывались клубы в среднем с шестью дорожками,
то ныне и 30 дорожек никого не удивляет.
Прогноз роста числа дорожек в России
|
Боулинг-бизнес по-российски |
Все больше деловых людей начинает понимать, что боулинг это не только модная
забава, но и быстрорастущий бизнес. Оборот боулинг — индустрии в России растет
как на дрожжах — в 2002 году $180 млн.
, а в 2003 уже почти вдвое больше. Чистая
прибыль клуба на 8-12 дорожек составляет около $400 тыс. год.
Пока одни предприниматели еще только подумывают об инвестициях в боулинг,
другие уже строятся, а третьи снимают сливки, В новостной ленте Яндекса за
один только месяц, обнаружились сообщения состоявшемся или планирующемся прибавлении
числа дорожек в Воронеже, Краснодаре, Белгороде, Тольятти, Уфе, Перми, Альметьевске,
Новом Уренгое, Владивостоке, Благовещенске, Находке, Нарьян-Маре, в городке
ВМФ в Видяево, и даже в городе с экзотическим названием г. Пыть-Ях (Тюменская
область). Это не считая новых боулингов в обеих столицах. Там же — информация
о множестве турниров боулеров. От профессиональных, где на кону призы в десятки
тысяч долларов, до корпоративных турниров, например, стоматологов и журналистов.
Впечатляет информация о необычных маркетинговых ходах некоторых клубов, например
о чемпионате по игре «вслепую» и турнире по стриптиз-боулингу, где допускались
только девушки топлесс.
Конечно, подобные выдумки маркетологов привлекают немало
посетителей, а хорошие специалисты боулинг-бизнеса в последнее время вообще
нарасхват. Директор одного из старейших московских боулингов признался нам,
когда готовилась статья, что его давно «сватают» приехать поднимать новый боулинг-центр
в одном далеком регионе. «Деньги предлагают большие, но не хочется надолго
оставлять семью », сетует он.
Говорят специалисты |
- В открытие боулинга требуется вложить около полумиллиона долларов, а окупается он в среднем за 1,5 — 2 года
- Дополнительная прибыль от сопутствующих услуг достигает уровня прибыли от самой игры
- У боулинг-бизнеса — минимальные затраты на реализацию и низкие операционные расходы
- Материальные активы боулинга сохраняют свою стоимость в течение 20 лет
Семь раз отмерь |
Перед новичками боулинг-бизнеса всегда возникает масса вопросов – с чего начать,
каких затрат это потребует, и, конечно же, как выбрать оборудование и поставщика?
Попробуем ответить на эти вопросы.
Прежде всего, посчитаем квадратные метры.
Считается, что:
- на одну дорожку требуется 100 кв. метров , причем помещение должно быть не менее чем в 35 метров длиной, а лучше – с запасом, ведь стандартная длина дорожки – 25 метров , но требуется еще пространство для разбега и место для отдыха.
- особенных технических требований к помещению нет, даже, наоборот, строительные нормы менее строги, чем у торговых, жилых и офисных зданий, окон не требуется, особенных коммуникаций – тоже, так что возведение одного квадратного метра под боулинг обходится много дешевле, чем в случае с фитнес-центрами, кинотеатрами, салонами красоты и т.п.
- основные расходы приобретение и монтаж оборудования
Под оборудованием для боулинга понимается комплект из следующих изделий: дорожка
с основанием, пинспоттер – устройство для выставления кегель на дорожку, система
возврата шара, система подсчета очков, мониторы.
Кроме того, в стоимость поставки
обычно входит вспомогательное оборудование – комплект мебели, декоративные
панели, набор расходных материалов, аксессуаров и запчастей. Стоимость такого
комплекта варьируется у разных поставщиков в пределах от 25 до 48 тысяч у.е.
за дорожку.
Забота о клиенте? Нет, о собственных доходах! |
Прежде чем затевать открытие боулинга, посмотрите вокруг. Опытные директора боулинг-центров говорят о том, что подавляющая часть игроков приходит катать шары после работы. Поэтому лучше, чтобы рядом были офисные центры, удобные подъезды и просторная парковка. Желательно, чтобы вблизи была станция метро или остановка автобуса, потому что второй наплыв посетителей – это пятница и суббота, когда дорожки заняты всю ночь (играют до первых петухов!)
И, конечно же, нужно оставить место для вспомогательных услуг.
Это могут быть
кафе, бильярдные столы, игровые автоматы, а иногда и танцпол, сауна, картинг,
магазин, где боулеры смогут купить личные шары, обувь и другие аксессуары (PRO-SHOP).
В большинстве боулингов поступления от вспомогательных услуг составляют почти
половину общей выручки.
Обзор поставщиков оборудования для боулинга |
В каждом регионе различная ситуация, так что где-то на строительстве и ремонте можно сэкономить, но вот покупать оборудование все-равно придется в Москве. Посмотрим, кто у нас поставщики?
Следует отметить, что в последние годы практически все ведущие производители
вышли на тот уровень технологий, на котором уже невозможно предложить что-либо
революционно новое или существенно превзойти конкурентов, и внедряемые в последнее
время новации относятся в основном к области дизайна и креатива.
Поэтому разница
в цене дорожек на российском рынке зачастую обусловлена не разницей в качестве
оборудования, а степенью известности, «раскрученностью» того или иного бренда.
И, все-таки, первыми в свое время на российский рынок пришли две американские фирмы – Brunswick и AMF . Чуть позже подтянулись и другие, менее именитые поставщики.
Абсолютным лидером российского рынка долгое время была компания Brunswick .
Ее оборудование использовалось еще при строительстве первого боулинг-центра
в столичной гостинице Россия в 1976 году. Новейшая история Brunswick в
России началась с 1997 года, когда в Москве открылось аккредитованное представительство BRUNSWICK
BOWLING & BILLIARDS . Затем интересы международной корпорации
в России стал представлять его официальный дистрибьютор ООО «БиБи энд Би» (капитальное
оборудование для боулинга) и ООО «Боулинг Бизнес» (аксессуары, запасные части
и расходные материалы для боулинг-центров) .
Еще один крупнейший поставщик оборудования — A MF Bowling Products , представлен в России официальным дистрибьютором ООО «АМФ Боулинг Продактс»
В том же 1998 году появился на российском рынке молодой и энергичный брэнд VIA BOWLING PRODUCTS . За 5 лет работы компания успела серьезно заявить о себе. Главной причиной успешного продвижения марки VIA на мировом рынке стало оптимальное соотношение цены и качества.
Приведем для сравнения несколько диаграмм и графиков:
Чье оборудование в Российских боулингах? | ||||
производитель | клубов | % | дорожек | % |
Brunswick | 119 | 31. | 921 | 37.71% |
VIA | 122 | 32.11% | 693 | 28.38% |
AMF | 80 | 21.05% | 567 | 23.22% |
| Прочие | 59 | 15.53% | 261 | 10.69% |
Общий итог | 380 |
| 2442 |
|
|
|
| СТОИМОСТЬ ОДНОЙ ДОРОЖКИ | ||
производитель | экономичная комплектация | максимальная комплектация |
Brunswick | $35 000 | $47 000 |
| AMF | $36 000 | $47 000 |
| VIA | $22 000 | $30 000 |
|
Работа поставщиков оборудования зачастую не ограничивается собственно поставками.
Квалифицированный поставщик предлагает своим клиентам полный цикл услуг по
созданию и организации работы боулинг-центра, и, в частности, его услугами
можно воспользоваться для разработки концепции клуба, комплексного проектирования
здания и дизайна интерьера. Эта задача ложится как на инвестора, так и на поставщика
и проектанта на самой ранней стадии работы над проектом.
Виды боулингов |
Если вы дочитали до этого абзаца, и не утратили интереса, значит, пора рассказать о четырех возможных концепциях боулинга. Исходя из того, на какого клиента будет ориентирован боулинг, можно выбрать спортивную, семейную, развлекательную или VIP – концепции боулинга.
Каждая потребует учета ее особенностей не только при зонировании, но и при
проектировании инженерных систем и коммуникаций — от архитектурного проекта,
расположения (престижный центр или спальный район) до комплектации оборудованием,
аппаратурой и вспомогательными услугами.
| Спортивный вариант боулинг-центра |
Подобный боулинг хорошо открывать при стадионе, спорткомплексе или фитнес-центре,
где боулинг будет одной из составляющих спортивных программ, игровым дополнением
к занятиям физкультурой и местом общения по интересам любителей спорта. Здесь
основными игроками будут профессионалы, или «продвинуые» любители, приезжающие
на красных машинах, одевающиеся в джинсы, майки и спортивные куртки, тщательно
соблюдающие правила поведения и традиции. Они не будут пить много спиртного,
но больше заплатят на саму игру, потратятся на суши-бар, кислородные коктейли
и спортивные пищевые добавки. В Штатах в таких боулингах можно легко встретить
Шварценеггера, Сталлоне, прочих звезд голливудских боевиков. У нас – известных
звезд отечественного спорта, за которыми тянутся толпы болельщиков.
Именно
сюда придут профессиональные боулеры, и будут тренироваться ежедневно, причем
что важно – в дневные часы. Они будут привозить к дорожкам тяжеленные чемоданы
с собственными шарами, поэтому, чтобы закрепить за собой этих регулярных игроков,
неплохо бы выделить помещение для их хранения за небольшую плату. В таком боулинге
неплохо будет зарабатывать магазин аксессуаров ( pro — shop ) и дриллер (тот,
кто сверлит в шарах отверстие, адаптируя шар под боулера). Дриллер – профессия
такая же редкая, как печник или космонавт. На хорошего дриллера боулеры ходят
так же, как гурманы ходят в ресторан хорошего шеф-повара. Здесь потребуются
штатные тренеры, которые начнут обучать новичков. Здесь потребуется штат судей,
умелых организаторов спортивных турниров с призовыми фондами в несколько десятков
тысяч долларов. Раскрутка спортивного боулинг-клуба обойдется недорого, но
должна вестись пиарщиком, который умеет сотрудничать с новостными редакциями
спортивных изданий, интернет-сайтов, радиостанций и телеканалов, спортивными
федерациями.
На стенах у входа в боулинг неплохо разместить расписания турниров,
фотографии профессиональных боулеров с перечислением их регалий, выигранные
кубки и грамоты, а также фото известных спортсменов, когда либо посещавших
это заведение.
При спортивной концепции боулинга важно обеспечить в клубе соблюдение правил игры и поведения на дорожках, в нем должно быть больше препятствий (ограждений, направляющих), обеспечивающих порядок и сохранность оборудования в идеальном состоянии. И еще один совет: обеспечьте как можно более эффективную вентиляцию и повесьте таблички «не курить» в игровой зоне. Эти вы еще больше увеличите число посетителей своего спортивного боулинг-клуба.
«Семейный» боулинг-центр |
Обычно это клуб с богатым выбором развлечений для семейного и корпоративного
отдыха, ядром которого является боулинг и ресторан.
Сюда будут приезжать большие
разнополые компании друзей и сослуживцев, а также семьи, чтобы провести здесь
половину дня. На парковке такого боулинга будет сущее разнообразие машин –
от ВАЗовских десяток до мерседесов различных цветов, причем черный цвет будет
встречаться реже. Частым типом клиентов будут мужчины с животиками, дамы не
самого юного возраста, и, конечно же, обилие детей самых разных возрастов.
Одеваться такая публика будет нарочито дорого, ведь поездка в боулинг это еще
и «выезд в свет». Гулять публика будет по-купечески, не отказывая себе в мелочах.
А уж детей точно побалуют тортами, мороженым, жетонами игровых автоматов и
тому подобными элементами заботы о подрастающем поколении. Показательно, что
компании студентов здесь появляться не будут, чтобы ненароком не столкнуться
с «надоевшими предками» и разгрузить уши от нотаций и попсовой музыки. Зато
здесь часто будут справлять дни рождения (в том числе и детские), корпоративные
вечеринки и праздники.
Бар и кафе будут работать с повышенной нагрузкой, поэтому
нужно будет выделить для зоны питания хотя бы метров 50. Надо будет разработать
два типа меняю – фаст фуд, который будет в изобилии поедаться в зоне игры (но
только то, что можно употребить без вилок и ножей!), а также меню «а ля карт»,
где каждое блюдо готовится по индивидуальному заказу, но быстро – не больше
получаса — ведь многие игроки будут оставаться после игры и плотно обедать.
В особенном почете будут крепкие спиртные напитки, красные полусладкие вина
и кола.
В семейном боулинге нужно разнообразить варианты досуга. Неплохую выручку принесут бильярдные столы, игровые автоматы, забавные аттракционы, и обязательно – детская зона.
Большое внимание в заведениях такого типа уделяется созданию спокойной и комфортной для гостей атмосферы. Потребуются специалисты, умеющие провести праздник, а также занять детей.
На стенах у входа должны быть фотографии звезд эстрады, кино, когда-либо посещавших
этот боулинг.
Желательно с автографами. Раскрутка подобного боулинга обходится
дорого — потребует публикаций в глянцевых журналах, бизнес-журналах, каталогах
дорогих магазинов. Неплохо работают уличные перетяжки, создание «глянцевого»
Интернет-сайта. Отдел маркетинга семейного боулинга обычно работает во взаимосвязи
с несколькими продюсерскими фирмами, приглашая на корпоративные вечеринки разнообразных
артистов, ведущих, массовиков-затейников. Обычно перед каждым праздником (а
их в России много), подобные боулинги на одну-две недели расписаны за крупными
заказчиками, а значит полностью или частично закрываются на спецобслуживание,
приносящее хорошие доходы.
Боулинг при развлекательном комплексе |
Такой боулинг в стиле «рок» — самое демократичное многопрофильное заведение,
предназначенное в наибольшей степени для массового отдыха молодежных и студенческих
компаний, которые безвылазно и круглосуточно оккупируют этот боулинг.
Как правило,
здесь много дополнительных развлечений, приносящих владельцам доход (компьютерный
клуб, игровые автоматы безденежного выигрыша, американский пул, дискотека,
стена для скалолазания, Q-Zar и прочее). Здесь бар, где рекой будет литься
пиво, слабоалкогольные напитки и спрайт. Здесь будет накурено до белой пелены.
Здесь будет и клуб знакомств, и дискотека, и место тусовки.
Здесь можно не тратиться на большую парковку, можно подобрать менее дорогое оборудование, цена на которое на порядок ниже, можно не дорогой ремонт со стильным дизайном, можно сэкономить на расходных материалах.
При создании боулинга такого типа лучше придерживаться демократичного стиля свободы во всем и намеренного разгильдяйства, учитывая максимальную подвижность посетителей, а также принцип наиболее легкого доступа во все зоны (дорожки, бар и т.д).
Важные элементы, о которых не следует забывать: такой боулинг должен находиться
неподалеку от крупных институтов, рядом со станцией метро или перекрестком
с несколькими маршрутами общественного транспорта, здесь должна звучать модная
молодежная музыка, работать Ди Джей с именем, а также служба безопасности,
умеющая поддерживать порядок у такой непредсказуемой публики.
На раскрутку такого заведения много тратить не придется. Молодежь сама быстро найдет сюда дорогу. Но вот на то, чтобы закрепить репутацию «клевого места», придется потратить немало усилий. Здесь помогут совместные акции с молодежными СМИ, радиостанциями, рок-фестивалями. Хорошо бы заполучить в завсегдатаи нескольких молодежных кумиров. Обязательно потребуется создать интерактивный сайт с чатами и форумами фанатов этого клуба. Здесь нельзя «застыть», потому что быстро меняется мода на музыку, одежду, пристрастия молодежи. За ними нужно будет успевать и быстро менять стили. Вообще, в молодежном клубе важно предусмотреть все элементы тусовки – конкурсы, аттракционы, забавы. Их можно подсмотреть и перенять у сегодняшних ночных клубов. Тогда молодежь будет приходить к вам в боулинг, как к себе домой.
Закрытый боулинг-клуб |
Этот вариант боулинга, который можно создавать, если среди ваших знакомых
есть хотя бы десяток сильных мира сего.
Это будет дорогое заведение для VIP
-клиентов, наименее демократичное и наиболее дорогое, с небольшим количеством
дорожек, которые станут приятным дополнением клубной жизни ограниченного числа
людей из высшего общества. Здесь может звучать живая классическая музыка, на
охраняемой парковке могут стоять Бентли или Роллс-Ройсы, а посетители скорее
всего будут одеты не в Дольче-Габбану, а в Валентино.
По большому счету, здесь выручка от игры в боулинг будет иметь для вас минимальное значение. Скорее всего посетители немало заплатят за годовую клубную карту, потому что она станет пропуском в мир, где можно в непринужденной обстановке обсудить миллионный контракт, замолвить словечко о нужных людях, быстро решить – конечно не проблемы мира, а свои собственные.
Такую же функцию, в общем-то, выполняют и VIP -салоны красоты, элитные рестораны, сауны, и тому подобные
Никого не удивляет, что владельцы подобных заведений уже через несколько лет
работают или в Администрации Президента, или занимают стратегические должности
в государственных или частных корпорациях.
Закрытый боулинг-клуб – это скорее
не бизнес, а трамплин наверх, а также возможность стать особенно полезным для
серьезных бизнесменов, политиков, чиновников, включаясь в Большую Игру.
Создание подобного клуба может обойтись в несколько миллионов долларов, в эту сумму закладывается стоимость недвижимости в престижном районе, качественного и стильного ремонта, профессиональное оборудование ведущих производителей.
Здесь потребуется вышколенный персонал, способный удовлетворить любую, самую неожиданную просьбу посетителя, серьезная служба безопасности, и конечно же, дорогой шеф-повар, способный угодить разнообразным пожеланиям гостей. Реклама такому заведению просто во вред.
| Где посмотреть варианты концепций |
Иногда проще показать, чем объяснить. Для тех, кто всерьез задумывается над
созданием боулинга, можно порекомендовать побывать в нескольких столичных клубах,
чтобы живьем познакомиться с тем или иным вариантом специализации боулинга-центра.
Конечно, концепция в чистом виде встречается редко, но крен в ту или иную стратегию
можно увидеть в любом боулинге. Что называется, сходите и посмотрите.
Представителями спортивной концепции боулинга в Москве можно назвать, например, клуб Майами-боулинг и боулинг-центр МегаСфера.
Семейный боулинг выбрали для себя Апельсин-боулинг и Локо-парк боулинг
Развлекательный стиль проповедует Самолет-боулинг и боулинг Утюг
Увы, в закрытый боулинг-клуб вам скорее всего попасть не удастся.
Выводы |
Боулинг относится к быстрорастущим видам бизнеса с запасом привлекательности
инвестиций в 10-15 лет. Относительная рентабельность боулинга высока, а относительный
риск этого бизнеса невысок. Материальные активы сохраняют свою стоимость в
течение 20 лет или более длительный период.
Боулинг в целом – это прибыльный
бизнес с минимальными затратами на реализацию и низкими операционными расходами,
благодаря чему потребность в оборотных средствах невысока. Помимо дохода от
самой игры боулинг предоставляет возможность инвестору получать дополнительную
прибыль от сопутствующих услуг: продажи еды и напитков, бильярда и видеоигр,
продажи аксессуаров. Причем, размер этой выручки сравним с выручкой от самой
игры.
Каждая дорожка боулинга приносит $7 в час чистой прибыли. Средняя загрузка каждой дорожки 6-8 часов в сутки. Прибавьте сюда доходы от бара, кухни, бильярда, игровых автоматов, продажи аксессуаров и прочее. Вы получите от эксплуатации боулинг-центра на 8 дорожек более $20’000 в месяц за вычетом расходов.
Поскольку текущие затраты в боулинге низки, валовая прибыль может превышать
90% от поступлений. Окупаемость проекта в среднем без учета капитального строительства
составляет 1,5 – 2 года.
Статья подготовлена Посольством медицины
специально
для БИЗНЕС
Журнала
У нас Вы ее читаете в авторской транскрипции
Как долго длится боулинг? Анализ измерений
Какова длина дорожки для боулинга? Если вам интересно, то эта статья для вас! Дорожки для боулинга различаются по размеру в зависимости от того, где они расположены и какого типа это дорожка для боулинга.
Например, если в дорожке для боулинга есть дорожки, которые идут прямо до конца без поворотов и поворотов, то она будет длиннее, чем дорожка для боулинга с поворотами.
Боулинг может быть очень длинным местом. В этой статье мы рассмотрим, какой длины обычно бывают разные типы переулков, и приведем несколько примеров.
Содержание
Какой длины боулинг? Дорожка для боулинга представляет собой длинное и узкое помещение, где играют в боулинг.
Общая длина дорожки для боулинга обычно составляет 100 футов, включая дорожки для боулинга, зону отдыха, механическое помещение и яму для плит. Аллея состоит из 12 дорожек длиной 60 футов каждая от линии фола до центра кегли.
Схема с указанием размеров дорожки для боулинга
Дорожки для боулинга: какой длины?Конгресс США по боулингу (USBC) является санкционирующим органом в отношении боулинга и предоставляет спецификации и правила относительно длины дорожек для боулинга.
Если вы хотите это узнать, было бы хорошо, если бы вы ознакомились с некоторой общей информацией об их характеристиках полосы движения или о том, что они предоставили.
Дорожка — самая важная часть любого боулинга. Это длинная узкая полоса, которую все боулеры используют, чтобы бросить свои шары, пытаясь сбить как можно больше кеглей каждым брошенным шаром.
Регулировочная дорожка должна быть изготовлена из дерева и/или других синтетических материалов, одобренных Конгрессом США по боулингу (USBC).
Подход должен иметь откаты с обеих сторон, чтобы вы могли легко обойти его, когда снова придет ваша очередь.
Для боулинга требуется дорожка, которая была тщательно сконструирована из синтетических материалов квалифицированными специалистами, чтобы обеспечить стандарты безопасности и производительности.
Из соображений безопасности важно знать разметку полосы движения и подъезда. Например, когда вы находитесь в свой ход, убедитесь, что вы помните маркеры.
Перед каждой точкой 2-6 маркеров. 1-й маркер 2′-6′. Затем он поднимается до 3′-4′, затем 6′-7′, затем 9′-10′, затем 11′-’12’. Дальше идет 14-«15″. На расстоянии 33-44 фута от линии будет 4 мишени с максимальной шириной в одну доску и длиной 36”.
Вы можете идентифицировать проводников по их стрелкам, которые находятся примерно в 15 футах от линии фола и помогают вам выбрать цель с 60 футов.
Всегда легче выбирать цели ближе, чем дальше, когда вы изначально нацеливаете свой выстрел сразу за конец полосы движения, но эти полезные маркеры также можно использовать в качестве точки привязки для точной настройки, прежде чем направить его к цели.
У игроков в боулинг больше личных предпочтений при использовании направляющих точек за линией фола, чем при использовании стрелок.
Что сложно в использовании этих близких наборов направляющих, так это то, что они не совпадают идеально с расположением кеглей на деке, тогда как стрелки обычно лучше выравниваются с информацией о кеглях.
Если у вас есть какие-либо вопросы или вам нужна помощь в достижении наилучшего выравнивания перед катанием, проконсультируйтесь с одним из наших сертифицированных тренеров.
Общая информация: Ни один боулинг не может считаться успешным, если он не сертифицирован и не используется игроками лиги. Игра в лиге доминирует в вечерние часы в большинстве регионов, при этом лиги состоят из восьми или более команд, в каждой из которых от двух до пяти человек.
Основные размеры- Высота отдачи может достигать 24 дюймов над кеглем, а их нижняя точка составляет 17 дюймов.

- Подушки Pit имеют толщину 9 7/8″, а толщина хвостового оперения — не более 2″.
- Пятна волокон диаметром 2 1/4″ выглядят как булавочные пятна.
- На каждом конце доски есть два кегля, которые находятся примерно в 20 мм от края кеглей, а центры этих кеглей находятся на расстоянии 12 мм друг от друга, образуя равносторонний треугольник.
- Имеется желоб (канал) шириной 9 1/4″.
- Поверхность полосы движения покрыта 1-дюймовым желобом.
- Обычно полоса постельного белья бывает шпунтованной или изготавливается из синтетического материала, который кажется лежащим на ее краях доской.
- Боулинг — это игра, в которой важна точность и стабильность, и соотношение дорожек и кеглей оказывает значительное влияние на то, насколько плавно катятся шары. Дорожки для боулинга измеряются в футах от линии фола, а не в длине поверхности, поэтому при планировании стратегии игры важно знать, какую длину вы играете: 60, 61 или 62 фута.

- В этом случае расстояние дорожки от пиндека до общей длины составляет 62 фута 10 и 3/16 дюйма. Боулеры должны точно знать, каково будет расстояние их дорожек, прежде чем разрабатывать стратегию подсчета очков, поскольку это в значительной степени определяет характер качения мяча.
- Ширина 42 1/2 дюйма — это длина дорожки.
- Вам нужна чистая дорожка для боулинга. На поверхности не должно быть канавок или гребней с допуском до 40/1000″ в поперечном наклоне, выпуклостях и впадинах. Кроме того, продольный угол может варьироваться на целых 40 градусов, не слишком сильно влияя на игровой процесс.
- Луч грязного света можно увидеть до 10-15 секунд, он должен быть виден не более чем на 1/4″ за пределами подхода и должен быть полностью автоматическим.
Сообщение, которое вам может понравиться: Является ли боулинг целевой игрой?
Типы покрытия дорожек Боулинг — сложная игра со многими переменными, которые могут повлиять на ваш успех.
Понимание тенденций на дорожке и соответствующий выбор турнирных мячей помогут вам максимально раскрыть свой потенциал и добиться успеха в этом сложном виде спорта.
ДеревоИзношенная и хорошо используемая деревянная дорожка для боулинга является самой сложной для игры в боулинг, но она также может быть самой сложной для ваших противников.
Более высокая скорость мяча означает больше шансов на совершение идеального удара через кегли, потому что, даже если у вас недостаточно силы для броска, простое высокое вращение в сочетании с хорошим наклоном гарантирует, что они попадут в цель. целевая зона.
Это не всегда вариант, когда вы играете против одного из этих супергладких пластиковых дорожек или более новых синтетических.
Для деревянных дорожек обычно используется сосна на последних 45 футах дорожки, которая благодаря своей мягкости обеспечивает поверхность с высоким коэффициентом трения для движения шара для боулинга.
Более мягкая поверхность позволяет шарам с менее агрессивным покрытием (с меньшим количеством крючков) больше времени и возможностей скользить вниз к намеченной цели, прежде чем свернуть с курса на своих товарищей по боулингу в поисках очков или кеглей.
Сообщение, которое может вам понравиться: Является ли боулинг аэробикой?
AMF SyntheticsСинтетические дорожки AMF для боулинга обычно имеют меньшее трение, чем деревянные, и более высокое трение, чем Brunswick, синтетические покрытия.
Эти свойства чаще всего благоприятствуют мячам, которые сохраняют энергию для задней части своей траектории.
Brunswick SyntheticsНовые синтетические материалы от Brunswick, как правило, имеют меньшее трение, что способствует более прочному покрытию. Высокое трение на старых дорожках может затруднить их прохождение, поэтому вам нужен план в начале игры.
Масляные узорыВот короткое видео, объясняющее масляные узоры в боулинге:
Масляные машины используются для нанесения масла на поверхность дорожки для облегчения скольжения шара для боулинга.
Большая часть этой активности сосредоточена в 10 футах за линией фола и на глубине примерно 20-30 футов по направлению к центру дорожек (в зависимости от). Это будет называться «передняя часть» или зона «головы», потому что она находится ближе всего к тому месту, где мы, боулеры, стоим.
Эта часть дорожки, которую часто называют «средней дорожкой», содержит меньше масла, чем любая другая ее часть. На последних 20 футах поля нет масел, поэтому мячи могут цепляться за эту поверхность и легко скользить к своим целям, не будучи слишком скользкими.
Это позволяет наклону оси мяча более эффективно зацепляться за желаемое углубление между 10-м штифтом и головным штифтом, поскольку не так много поверхностей, препятствующих или замедляющих импульс до достижения штифтов; даже если они немного отклоняются от курса, на полосах достаточно сцепления из-за отсутствия остатков смазки.
Обслуживающая бригада должна поддерживать ровность поверхностей дорожек и кеглей, чтобы мяч не соскальзывал с дорожки и не терял скорость.
Связанный пост: Боулинг — это скучно?
Короткие масляные пятнаБолее короткие нефтяные пятна обычно требуют большего сцепления с задней частью вашей дорожки . Двуручные боулеры могут обнаружить, что им нужно использовать пластиковый или уретановый шар с покрытием, чтобы противостоять более низким уровням масла во время движения.
Оборудование из реактивной смолы обычно чрезмерно реагирует и приводит к плохому переносу кеглей, поэтому агрессивные шары оставляются до тех пор, пока у вас не будет времени, чтобы все успокоилось с несколькими последовательными попаданиями в лузу.
Средние масляные узорыКогда на дорожке находится средний масляный узор, существует множество различных вариантов оборудования.
От высокопроизводительных до уретановых мячей вы можете выбрать любой и по-прежнему добиваться успеха, пока ваша точка останова находится между восемью и двенадцатью досками на дорожке.
Масляные модели длиной более 42 футов известны как длинные масляные модели. Двуручному игроку нужно, чтобы мяч запускался быстрее, поэтому бросок чего-то более эффективного идеально подходит для начинающих метателей с таким набором шаров для боулинга в сумке.
Это обычно приводит к использованию более агрессивных раскладок при броске, чем при стрельбе с более коротких дистанций, а также к отходу от хрестоматийных бросков, где гораздо проще контролировать реакцию бэкенда для легкого спаривания или удара.
На длинных паттернах точки останова могут быть где угодно, вплоть до 22 досок, что означает, что любая боковая дорожка имеет равные шансы стать открытой после того, как первая заденет кегли нижней дорожки; люди должны соответствующим образом приспосабливаться, когда видят, сколько дорожек становится доступным во время игры, если они играют против кого-то, кто бросает такие типы снаряжения, поскольку в игру вступают разные тактики.
Двуручным игрокам лучше всего использовать мяч, который быстро стартует, чтобы они могли войти в свой ритм. Чтение мидлейна на длинных паттернах с продолжением бэкэнда поможет им удерживать мячи как можно дальше вниз по дорожке.
Точка останова для самого длинного паттерна (PBA Badger) составляет от 11 до 22 досок, минимум 18.
Научиться читать дорожки и решать, куда шары летят, безусловно, искусство. Поначалу это может быть сложно, но это не значит, что мы не можем повеселиться, решая эти проблемы вместе. Просто помните, практика делает совершенным.
Размеры дорожек для боулинга (включая домашнюю дорожку для боулинга)
Размеры дорожек для боулинга (включая домашнюю дорожку для боулинга)
Понимая наше игровое поле, боулеры не тратят время на изучение того, чем они на самом деле занимаются и чем занимаются. В баскетболе все знают, что кольцо находится на высоте 10 футов от пола, а в футболе все знают, что длина поля от зачетной зоны до зачетной зоны составляет 100 ярдов.
Если мы хотим узнать о различных размерах дорожек для боулинга, первый вопрос, который возникает:
Какой длины дорожка для боулинга?
USBC регулирует многие маркировки и размеры поверхности дорожек для боулинга в своем своде правил спецификаций дорожек для боулинга. Все дорожки имеют длину 60 футов от линии фола до кепки.
Насколько широка дорожка для боулинга?
Дорожки также имеют ширину примерно 41 фут и 1/2 дюйма от желоба до желоба.
Дорожка для боулинга
Дорожка для боулинга обычно размечена или состоит из 39 досок.
Схема размеров дорожки для боулинга
Взгляните на это изображение, прежде чем мы погрузимся и проанализируем каждую секцию дорожки для боулинга и объясним ее вам как можно проще.
Давайте копнем глубже и ответим на несколько вопросов о различных размерах и маркировке дорожек для боулинга. Что такое точки? Как далеко стрелки? Какие бывают разметки на полосе и что они означают?
Погружаемся.
1. Точки прицеливания
Наша первая остановка вне дорожки — это Точки. Точки расставлены на подходе, чтобы боулер мог выстроиться в линию для своего удара. В большинстве подходов к боулингу есть набор точек на линии фола, а также два набора точек в начале подхода.
Эти маркировки всегда находятся на расстоянии 5 досок друг от друга и совпадают со стрелками на дорожке. USBC фактически позволяет установить до 7 комплектов направляющих на различных расстояниях от линии фола.
Расстояние примерно от 6 до 8 футов от штрафной линии. Теперь вам может быть интересно, почему это примерно 6-8 футов, а не точное число. Согласно спецификациям USBC, это не обязательно должно быть точное число. Подойдет любое число с этим определенным параметром.
Для чего нужны эти точки?
Эти точки используются, когда люди хотят, чтобы шар для боулинга покатился немного раньше. Они могут приблизить свою цель и свои глаза к ней и использовать одну из этих точек прицеливания, чтобы помочь в этом.
Если вы постоянно совершаете фолы или приближаетесь к линии фола в другом боулинг-центре, знайте, что расстояние до точек приближения от линии фола не регламентировано точно.
2. Стрелки прицеливания (стрелки на дорожке для боулинга)
Стрелки отмечены на каждой пятой доске на поверхности дорожки. Я могу сказать вам, что третья стрелка слева и третья стрелка справа находится ровно в 15 футах от линии фола и служит визуальной мишенью почти для всех боулеров.
Важно отметить, что каждая стрелка состоит из 5 шагов доски. Итак, самая дальняя справа стрелка (назовем ее первой стрелкой для правшей) находится на 5-й доске, вторая стрелка на 10-й доске, третья стрелка на 15-й доске, а затем средняя стрелка (четвертая стрелка) находится на доске 5. на борту 20.
И затем пробираемся через дорожку для левшей, 15, 10 и 5. На мой взгляд, стрелы прицеливания являются наиболее широко используемым методом прицеливания для боулеров во всем мире.
3. Цели или дальномеры нижней полосы
Цели нижней полосы или дальномеры видны на синтетическом покрытии определенной марки. Первый набор дальномеров находится на расстоянии 34 фута. Они идут на 3 фута в длину и заканчиваются на 37 футах.
Второй набор начинается с 40 футов и 3 футов в длину и заканчивается на этих 43 футах.
Внутренняя пара мишеней выровнена с 3-й и 3-й стрелами или 15-й и 25-й досками от желоба.
Внешняя пара мишеней выстраивается по 2-й и 6-й стрелкам или 10-й и 30-й доскам в желобе.
Несмотря на то, что согласно своду правил допускаются небольшие отклонения, почти каждый боулинг-центр использует точное место для этой маркировки.
Для чего чаще всего используется эта маркировка в боулинге?
Это действительно брейкпойнт-контроль, когда вы наносите удары по дорожке. Легко сказать, где находится ваш шар для боулинга, потому что у вас есть маркировка контрольных точек, которые помогут вам ориентироваться на этом пути.
Резюме: Размеры дорожек для боулинга
Обычно дорожки находятся в 60 футах от линии фола до кегли.
Приблизительно 41,5 фута в ширину от желоба до желоба.
Дорожки для боулинга размечены на 39 досках.
В «Стрелках прицеливания» каждая стрелка состоит из 5 приращений доски.
Существует два набора мишеней и дальномеров. Первый набор начинается на 34 футах и заканчивается на 37 футах. Второй набор начинается на 40 футах и заканчивается на 47 футах.
Домашняя дорожка для боулинга Размеры
В Соединенных Штатах примерно 5000 домов с дорожками для боулинга. Итак, домашний боулинг или домашний боулинг — это на самом деле вещь.
Домашняя дорожка для боулинга в основном имеет два разных размера.
1. Домашняя дорожка для боулинга Размеры мини-дорожки: Эта дорожка предназначена для небольших помещений длиной около 31–32 футов.
2. Домашний боулинг Размер дорожки для полной версии: Они имеют длину около 88-100 футов, в зависимости от того, есть ли у вас места за дорожками.
Однако ничего не высечено в камне. Вы также можете получить индивидуальную дорожку для боулинга, если хотите. Некоторые компании, такие как Fusion Bowling или All America Bowling, предлагают это.
Домашняя дорожка для боулинга Стоимость:
Мини-дорожка для боулинга обойдется вам в 30-50 тысяч долларов США. Установка под ключ.
С другой стороны, полная дорожка (полная версия дорожки для боулинга и все дворы) будет где-то между 90k-120k в зависимости от дополнений, которые вы хотите с освещением и так далее.
Окончательный вердикт:
В следующий раз, когда вы посетите новый центр или почувствуете давление в незнакомой обстановке, помните, что он 60 футов в длину и 39 досок в ширину, как вы всегда играли в боулинг.
Какова длина дорожки для боулинга? [В футах и метрах] – FitSeer.
comМожет показаться, что кегли находятся далеко, и сбить их все во время игры в боулинг – невыполнимая задача. Но какой длины дорожка для боулинга на самом деле? Давайте посмотрим ниже.
Дорожка для боулинга имеет длину 60 футов [18,288 метра] от линии фола до кегли. Общая длина от переднего подхода до задней зоны обслуживания составляет 86,5 футов [26,36 метра]. Дорожки для боулинга имеют одинаковый размер во всем мире, поэтому игра всегда честная, где бы вы ни находились.
Это может быть сложной задачей, если вы новичок в боулинге, но не волнуйтесь. В этой статье мы более подробно рассмотрим размеры дорожек для боулинга. Кроме того, мы ответим на другие часто задаваемые вопросы о дорожках для боулинга, так что читайте дальше!
Когда вы покупаете товары по ссылкам на Fitseer.com, мы можем получать партнерскую комиссию.
Насколько велика дорожка для боулинга?
Боулинг был изобретен эфиопами в 5 веке до н.э. и стал увлекательной игрой для людей всех возрастов.
Игра развивалась с годами, включая размер дорожек.
Все дорожки для боулинга должны соответствовать Конгрессу США по боулингу [USBC]. Эти стандарты включают размер дорожки, размер и вес мяча и многое другое.
Итак, какой длины дорожка для боулинга? Это зависит от того, с чего вы начнете измерения. Если вы измеряете от линии фола до кепки, это 60 футов [18,288 метра]. Но если вы измерите расстояние от передней части въезда до задней части полосы движения, получится 86,5 футов [26,36 метра].
Ширина дорожки для боулинга составляет 42 дюйма [106,68 см] от желоба до желоба. Середина дорожки — это место, где расположены стрелки, и она называется «целевой линией». Это идеальное место для игры в боулинг.
Подъезд — это место перед дорожкой, где вы делаете свои первые шаги. Длина подхода обычно составляет 15 футов [4,572 метра]. Если хотите, можете начать с разбега, но это необязательно.
В конце дорожки находится пит-лейн. Здесь находится машина для пинсеттера, а шары возвращаются в боулеры.
Наиболее важной частью дорожки является линия фола. Это линия, которую вы должны пересечь при подаче, и если вы перейдете ее, это будет фолом.
Теперь, когда мы знаем, насколько велика дорожка для боулинга, давайте ответим на другие часто задаваемые вопросы о дорожках для боулинга.
Каковы размеры шара для боулинга?
Стандартные шары для боулинга имеют диаметр 8,5 дюймов и вес от 6 до 16 фунтов. Вес мяча, который вы используете, зависит от вашего стиля боулинга и типа игры, в которую вы играете.
Эмпирическое правило выбора шара для боулинга заключается в использовании правила 10%. Например, если вы весите 120 фунтов, вам понадобится 12-фунтовый мяч. Если вы весите 150 фунтов, вам понадобится 15-фунтовый мяч.
Вы можете использовать этот метод в качестве примерного диапазона для определения правильного веса шара для боулинга. Но, в конечном счете, вам решать, какой мяч удобно держать в руке и который хорошо сочетается с вашим стилем игры в боулинг.
Вы поймете, что шар для боулинга слишком тяжелый, если он напрягает вашу руку, и вы не можете полностью выпрямить руку во время игры. Для маленьких детей, у которых есть проблемы с 6-фунтовым мячом, вы можете использовать рампу для боулинга и бамперы желоба, чтобы помочь им.
Насколько велика кегля для боулинга?
Стандартная кегля для боулинга имеет высоту 15 дюймов [38 см] и диаметр 4,75 дюйма [11,94 см]. Верхняя часть булавки закруглена, а нижняя имеет конусообразную форму с отверстием, чтобы она могла стоять вертикально. Вес кегли для боулинга колеблется от 3 до 3,5 фунтов [от 1,5 до 1,6 кг].
Если вы когда-либо брали в руки кегли для боулинга, вы обнаружите, что они неудобны, тяжелы внизу и легки наверху. Этот дизайн является преднамеренным, потому что его труднее сбить.
Когда все кегли стоят, они образуют треугольник в конце дорожки. Передний штифт называется «шпилька» и имеет номер 1, а остальные нумеруются слева направо.
Сколько досок на дорожке?
На обычной дорожке для боулинга тридцать девять досок.
Для боулинга используется сосна из-за ее устойчивости к усадке и гниению. Тем не менее, дорожки для боулинга необходимо регулярно смазывать, чтобы защитить их.
Дорожки для боулинга смазываются от линии фола до пит-лейна. Количество масла и его расположение на дорожке зависит от типа игры. Как правило, боулинг смазывают один или два раза в день.
Например, в игре в боулинг с десятью кеглями наиболее распространенный рисунок маслом называется «шаблон дома». Этот образец масла предназначен для боулеров-любителей, но может варьироваться от дорожки для боулинга к дорожке для боулинга.
Масло предназначено не только для защиты дерева, но и для плавного движения мяча по дорожке. Если бы масла не было, мяч имел бы трение, и было бы трудно предсказать, где он окажется.
Если вы часто играете в мяч, на шаре для боулинга может образоваться масляное кольцо. Это когда масло с дорожки попадает в поры вашего мяча. Простой способ убрать это — использовать медицинский спирт.
Шары для боулинга бывают с отверстиями для пальцев?
В каждом шаре для боулинга просверлены три отверстия для пальцев [большой, средний и безымянный]. Размер этих отверстий для пальцев будет разным в зависимости от размера вашей руки.
Вы можете купить шар для боулинга без отверстий для пальцев, чтобы вы могли настроить отверстия так, чтобы они идеально подходили для вашей руки. Но в этом нет необходимости, если вы не участвуете в соревнованиях по боулеру.
Как и в случае с весом мяча, очень важно подобрать размер отверстия для пальца, удобный для вас. Если отверстия слишком большие, мяч может выскользнуть из руки. Если отверстия слишком маленькие, вы рискуете поранить пальцы.
Как долго существуют дорожки для боулинга?
Дорожка для боулинга может прослужить до пятнадцати лет при надлежащем уходе. Но если за полосой не ухаживать, она может начать изнашиваться уже через пять лет.
Самое важное, что вы можете сделать, чтобы продлить срок службы дорожек для боулинга, — это содержать их в чистоте.
Это означает, что нужно регулярно подметать и мыть дорожки.
Также необходимо убедиться, что дорожки правильно смазаны. Если дорожки слишком сухие, древесина начнет трескаться. Если дорожки слишком маслянистые, мяч не будет двигаться по дорожке правильно.
Следует также помнить, что шары для боулинга могут повредить ваши дорожки. Поэтому важно, чтобы боулеры-любители не бросали шары слишком сильно.
Как долго служат шары для боулинга?
Средний срок службы шара для боулинга составляет от 5 до 10 лет. Но это может варьироваться в зависимости от того, как часто вы используете мяч и из какого материала он сделан.
Например, если вы часто используете шар для боулинга, внешняя оболочка начнет изнашиваться. А если ваш мяч сделан из более мягкого материала, он быстрее сломается.
Вы можете продлить срок службы шара для боулинга, очищая его после каждого использования. Это удалит любую грязь или масло, которые могут скапливаться на поверхности мяча.

оборудование
п.)
3.2. Единый социальный налог
2. Свод расходов
32%